HOME
Real Estate
3D Visualizations
3D animations
Videos
About
HOME
Real Estate
3D Visualizations
3D animations
Videos
About
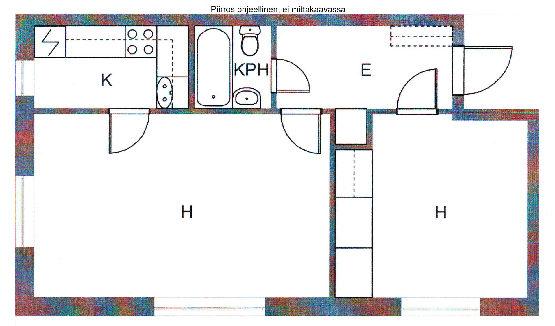
Hämeentie 95 Aparment 3D renders
visualizations made based on the floor plan
back to 3d visualizations
↑
Back to Top